성동50+센터에서 도시농부양성과정으로 수경재배를 강의했습니다. 이후 수강생들이 커뮤니티를 만들어 활동하고 있습니다. 센터로부터 그린월 설치를 의뢰받았고, 커뮤니티 회원들과 함께 그린월을 설치했습니다. 그린월의 기구부에 대해 소개합니다.
1. 설계
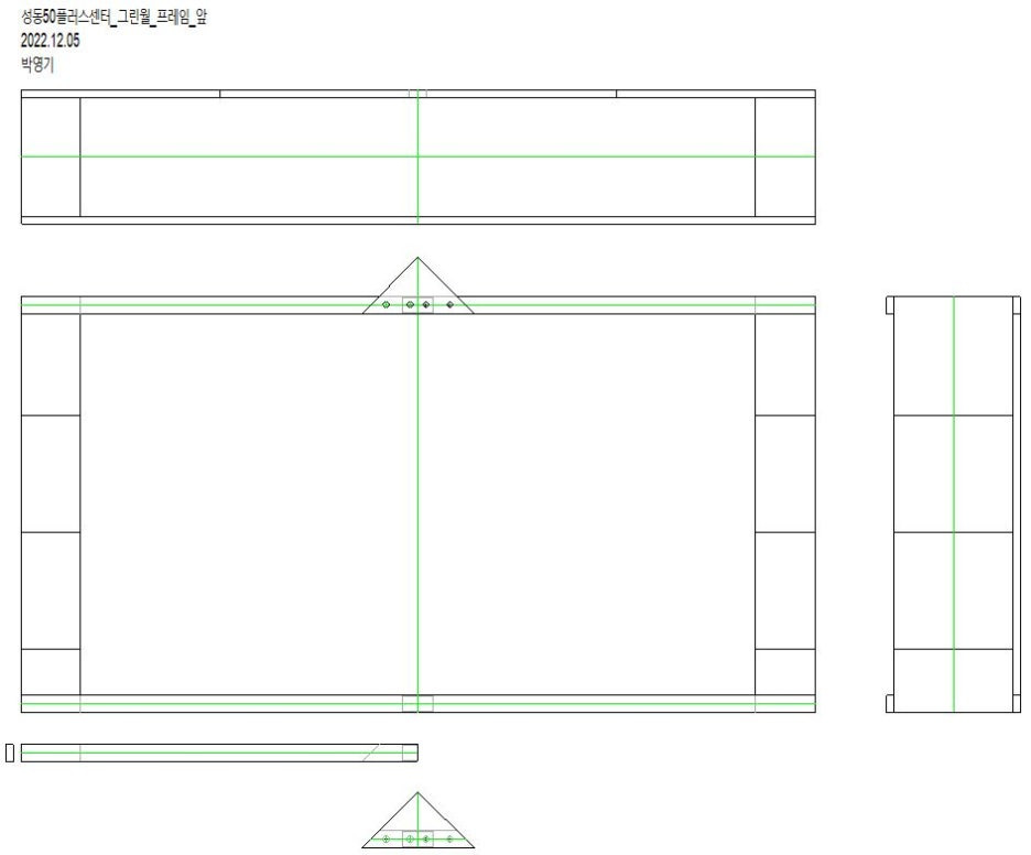
(1) 뒤쪽 프레임

모든 부품을 택배로 받기 위해 목재도 최대 길이가 2m가 되도록 설계했다. 뒤쪽 프레임은 식물을 매달기 때문에 무게를 견디기 위해 기둥을 여럿 두었다. 기둥 위에 보를 걸치는 구조이다. 보의 좌우 끝은 앵글선반 프레임에 결합되도록 했다. 기둥과 보의 연결은 나사못으로 박기에는 나무가 두꺼워서 평철을 사용하기로 했다.
(2) 사용한 벽걸이 화분
※ 일반 화분은 '화분'이라 하고, 벽에 거는 화분은 '벽걸이 화분'이라 구분해서 부르겠습니다.

벽걸이화분은 멀티 벽걸이 화분(MP-04)을 사용하기로 했다. 이것은 장충동작은도서관 그린월에 사용한 경험이 있다. 나사못으로 벽에 박을 수도 있고, 지지물에 걸칠 수도 있다. 성동50플러스센터에서는 막대자처럼 생긴 알루미늄 막대를 가로로 고정한 후, 알루미늄 막대에 걸치는 방법을 사용했다.
(3) 벽걸이 화분 거는 법

두께 3mm, 폭 30mm, 길이 1628mm인 알루미늄 막대의 좌우에 나사못 구멍을 2개씩 내어 나사못으로 고정하도록 했다. 이 화분 걸이가 뒤쪽 프레임의 강도를 더해준다.
(4) 벽걸이 화분 배치

벽걸이 화분을 걸 때 기둥에 위치하는 열을 우선 배치하고, 나머지 열은 적당히 간격을 맞출 수 있도록 했다. 10층이 11열로 구성되어 있어 총 110개의 벽걸이 화분이 들어간다. 벽걸이 화분 1개에 일반 화분 2개가 들어가므로 구입해야 하는 화분은 총 220개가 된다.
(5) 앞쪽 프레임

앞쪽 프레임은 개방된 형태이어야 하므로 중간에 기둥을 둘 수 없다. 이렇게 되면 보가 중앙에서 만나는 부분이 아래로 쳐지는 문제가 있다. 이 문제를 해결하기 위해 큼직한 이등변삼각형의 두꺼운 합판을 덧대고 굵은 볼트와 너트로 고정했다. 삼각형은 보의 고정 외에도 디자인 면에서도 필요한 부분이다. 여기에 그린월의 이름을 그려 넣는 등의 꾸미기를 할 수 있다.
(6) 바닥

바닥에는 평상을 두었다. 평상은 물저장조와 제어부를 가리고 보호한다. 또한 그린월을 만드는 동안에는 딛고 올라서서 작업할 수 있는 발판이 되어주기도 한다. 제작과 설치가 편하도록 3개로 구성했다. 수리나 보완을 대비하여 윗판을 들어낼 수 있도록 했다.
2. 설치 및 보완
(1) 앵글선반 조립

앵글선반은 사용설명서를 따라 쉽게 조립할 수 있었다.
(2) 앵글선반에 뒷쪽 보 연결

앵글선반을 그린월을 설치할 곳으로 옮기고, 보 일부를 연결했다. 앵글선반 프레임에 만들어져 있는 구멍을 이용하여 나사못으로 앵글선반 프레임과 목재를 고정했다.
(3) 프레임 제작
눕혀서 조립

작업을 하기 쉽도록 목재로 된 뼈대를 고정하는 것은 눕혀서 하고, 나머지 작업은 세워서 했다. 기둥과 보를 결합하는 것은 평철로 했다. 그러나 눕혀서 기둥과 보를 고정한 것이 나중에 문제가 되었다.

틀을 세우니 튼튼하지 않았다. 기둥과 보가 밀착되어 결합되지 않았다. 눕힌 상태에서 기둥과 보를 결합하니 간격이 벌어졌던 것이다.
프레임 보완

기둥과 보가 들떠는 문제를 해결하기 위해 다음의 작업을 했다.
- 프레임을 세운다.
- 기둥과 보를 결합하는 부품을 제거한다.
- 보가 중력으로 기둥에 밀착하도록 한다.
- 기둥과 보를 평철로 결합한다.

프레임을 보완한 결과이다. 앞쪽 위에 있는 보는 기둥 없이 연결되었다. 이등변삼각형의 두꺼운 판재를 붙이고 굵은 볼트와 너트로 결합했다. 매달려도 견뎠다.
(4) 바닥 설계 변경
바닥에는 총 3개의 평상이 있다. 가운데 것은 작은 것이고 좌우의 것은 더 크고 서로 동일하다. 이 중 좌우의 것의 설계를 변경했다. 변경한 내용은 다음과 같다.
- 가로 길이를 줄였다. 평상 위에 놓는 판의 가로 길이를 1200mm로 설계했는데, 1120mm로 만들어져 왔다. 이에 따라 판을 받치는 목재의 길이도 1124mm에서 1044mm로 줄였다.
- 판의 폭을 줄였다. 판을 덮어보니 판의 폭이 약간 커서 틀에 들어가지 않았다. 설계할 때에 여유를 두지 않았기 때문이다. 여유 6mm를 주었다.
- 다리를 덧붙였다. 판 위에 사람이 올라가서 작업할 때에 충분히 튼튼하게 받칠 수 있도록 다리를 덧대어 붙였다.

보완 작업을 마친 평상이다.
(5) 화분걸이 고정

화분걸이는 두께 3mm이고 막대자처럼 생긴 알루미늄재를 사용했다. 여기에 벽걸이 화분의 고리를 끼우면 간단히 설치된다.

화분 걸이 설치가 거의 끝나가는 모습이다.
(6) 벽걸이 화분 고정

화분 걸이에 벽걸이 화분을 끼웠다. 벽걸이 화분 뒤에 후크가 있어 쉽게 끼울 수 있다.

벽걸이 화분에는 물을 흡수하는 심지가 끼워져 있다. 벽걸이 화분을 설치할 때 끼우면서 했다. 심지는 벽걸이 화분 제품에 포함되어 있다.

벽걸이 화분을 모두 설치한 모습이다.
(7) 평상 설치

평상은 덮개를 얹었다뺐다 할 수 있도록 했다. 평상은 물 저장조, 제어부 및 전기부를 덮어서 보호하고, 높은 곳의 작업을 할 때는 딛고 올라설 수 있는 받침 역할을 한다. (스마트폰 사진은 원근감이 너무 커서 조금만 멀어져도 작게 보인다. 덮개가 작아 보이지만 실제로는 평상의 나무틀을 덮을 수 있는 크기이다.)
3. 기구부 설치 완료
평상까지 설치함으로써 기구부 설치가 완료되었다. 이후 순환부와 제어부 및 전기부를 설치해야 한다.
성동50플러스센터에 그린월 설치(2023년): 요약: 링크
성동50플러스센터에 그린월 설치(2023년): 개념 설계: 링크
성동50플러스센터에 그린월 설치(2023년): 순환부: 링크
성동50플러스센터에 그린월 설치(2023년): 제어부 및 전력 공급: 링크
이상으로 성동50플러스센터에 설치한 그린월의 기구부를 소개드렸습니다.
'기타 활동 > 개발, 설치' 카테고리의 다른 글
| <끓음-LAB> (2016년) (0) | 2024.12.26 |
|---|---|
| 성동50플러스센터 그린월 설치(2023년): 개념 설계 (0) | 2024.12.23 |
| 성동50플러스센터에 그린월 설치(2023년): 순환부 (0) | 2024.12.14 |
| DWC 방식의 스마트 재배기; 제어부 프로그래밍(2024.08.26) (0) | 2024.08.26 |
| 콘체르토 장위에 식물 디스플레이(2022년) (0) | 2024.08.14 |